zpět

Dům v Brně Černovicích

studie 2016, stavební povolení 2017, dokončení 2022
  • bydlení
  • interiér
  • rekonstrukce
  • rodinný dům

Naše srdcová záležitost - rodinný dům v Brně Černovicích. Již nějaký čas je domovem, ve který jej proměnili majitelé s jejich malými dětmi.
 

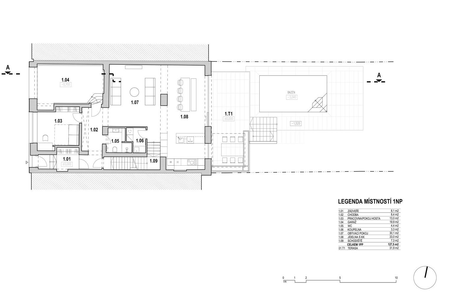
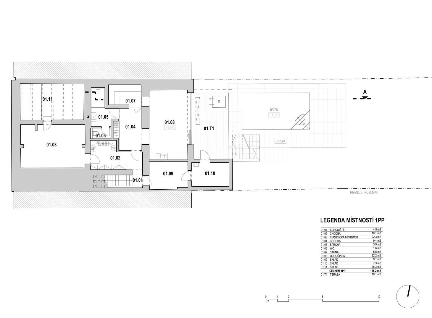
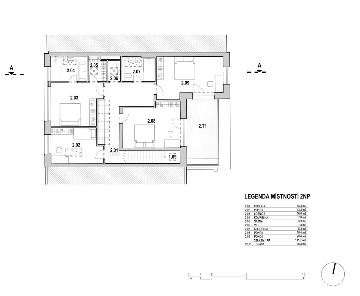
Blízkost centru, perfektní dostupnost škol a školek, zahrada tak akorát - to jsou kvality, které se stávají luxusem. Zároveň něco přes 320 m2 užitné plochy interiéru, je skryto v na první pohled drobném měřítku stavby. 

Foto: Filip Šlapal, Lukáš Hausenblas

PM-a © 2023 Všechna práva vyhrazena