zpět

Rodinný dům Slavkov 2

Studie 2019
  • bydlení
  • novostavba
  • rodinný dům

Návrh rodinného domu v sousedství našeho již realizovaného projektu pro rodiče RD Slavkov.
Mladá dcera s manželem chtějí zůstat v blízkosti rodičů, tak jsme se pustili do návrhu jejich sídla.

O poznání menší prostor v rámci proluky vyžadoval jiný přístup, jehož součástí je otočení venkovní pobytové části terasy na západ do hloubi úzkého pozemku.
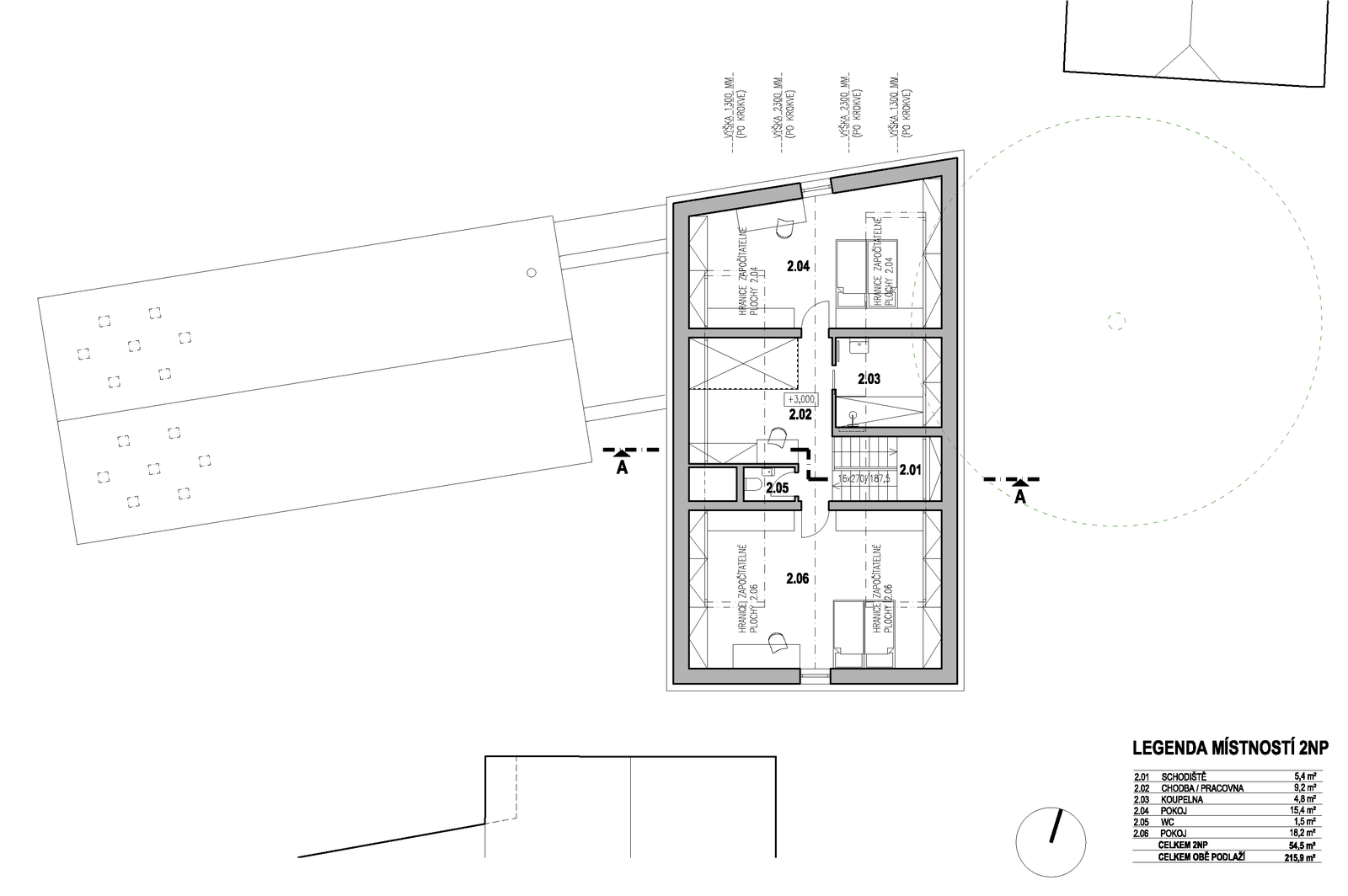
Pokoje dětí jsou umístěny v podkroví uličního objektu s pohledovou konstrukcí krovu. Prosvětlení podkrovního prostoru je, kromě štítových oken, zabezpečeno průběžnými nízkými vikýři s dřevěným laťováním.

Důležitým momentem pro návrh bylo rozhodnutí o zachování vzrostlého ořešáku před domem.

PM-a © 2023 Všechna práva vyhrazena