zpět

Rodinný dům v Litomyšli

2018
  • bydlení
  • novostavba
  • rodinný dům

Projekt: 2017-dosud

 

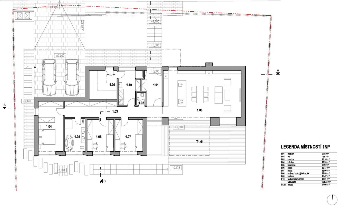
Blížíme se ke konci realizace domu do krásného města pro skvělé lidi. 

 

Objekt je osazen ve svahu,  který je úskalím i příležitostí zároveň.

 

Jsme ve fázi projektu pro stavební povolení a vymýšlíme pro dům efektivní energetické řešení, způsob vytápění nebo osvětlení, které bude vhodné pro přirozený cirkadiánní rytmus člověka.


 

PM-a © 2023 Všechna práva vyhrazena