zpět

Rodinný dům v Plzni

studie 2020
  • bydlení
  • novostavba
  • rodinný dům

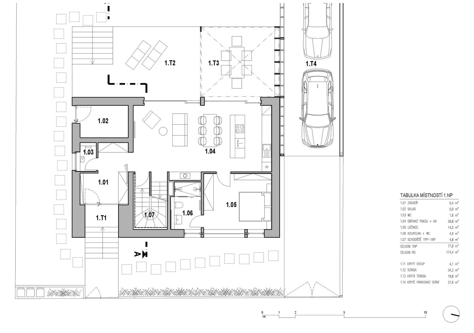
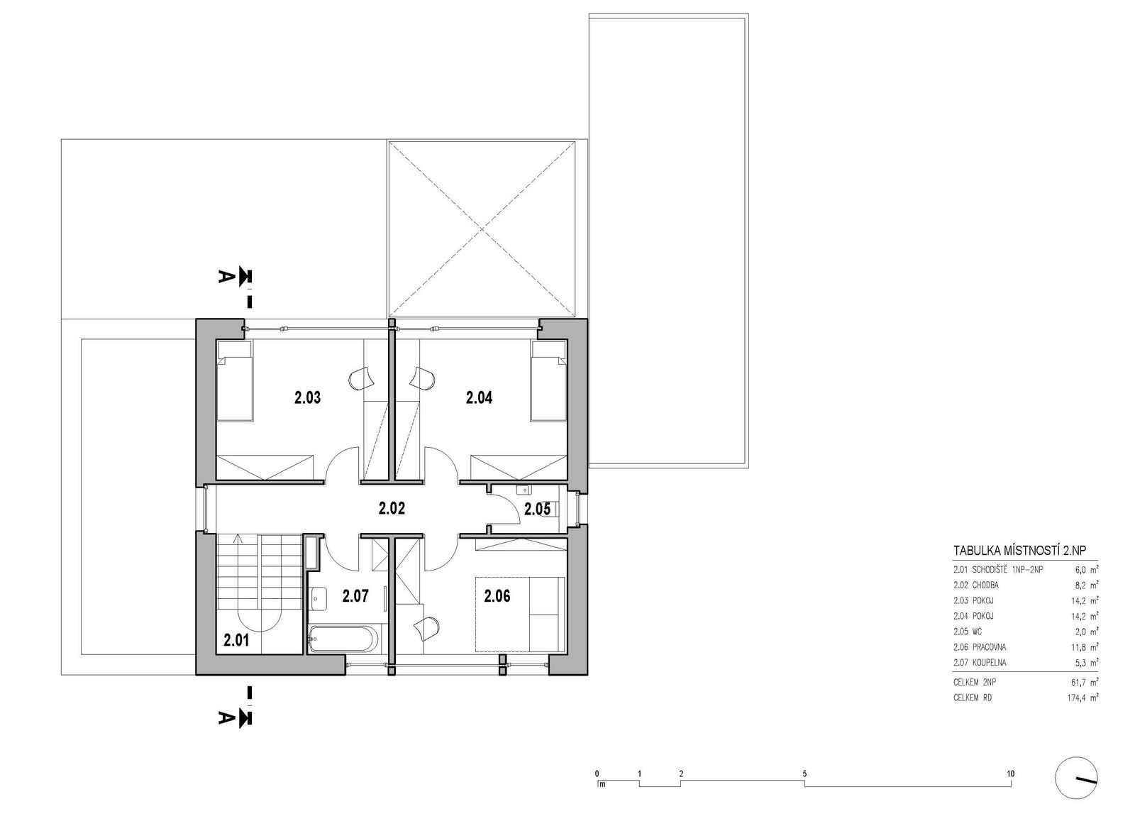
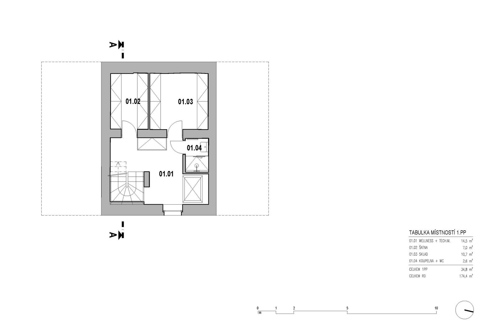
V Plzni v městské části Slovany jsme navrhli rodinný dům pro mladý pár. Návrh měřítkově i osazením respektuje charakter stabilizované okolní zástavby tvořené převážně solitérními rodinnými domy.

Klienti toužili po jednoduchosti a praktičnosti. Od domu očekávali nadčasový vzhled s důrazem na propojenost s exteriérem.

Výsledkem je kompozičně střídmý dům, u něhož je kladen důraz na kvalitní materiály a provedení detailů.

PM-a © 2023 Všechna práva vyhrazena