zpět

Vila u lesa

2013 (studie)
  • bydlení
  • novostavba
  • rodinný dům

Projekt: 2013

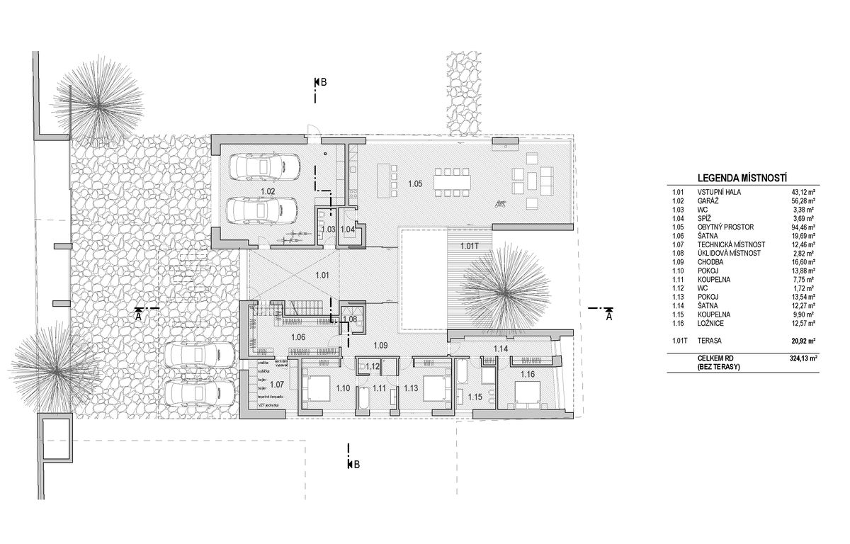
Rodinná vila umístěná v nice lesa, která se otevírá na jihozápad směrem k obci. Poloha i půdorys domu jsou striktně omezeny regulačními požadavky územního plánu.

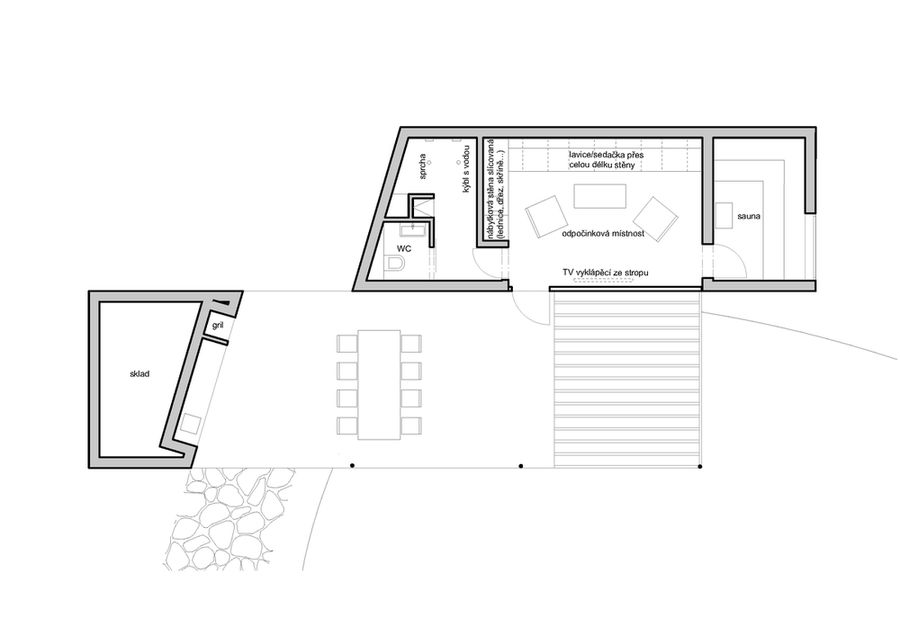
Členění hmoty domu poskytuje soukromí a zároveň přísun přímého slunečního světla. Velkoformátové prosklení propojuje interiér domu s prostornou zahradou. Součástí zahrady je jezírko s letní kuchyní a saunou.

PM-a © 2023 Všechna práva vyhrazena