zpět

Bytové domy v Pečkách

studie 2022; stavební povolení 2022
  • bydlení
  • novostavba

V rámci širší rozvojové lokality v Pečkách navrhujeme a koordinujeme budoucí podobu části města, ve které vzniknou nové bytové domy, park, ulice a další navazující veřejné prostory. Developerský projekt vzniká v úzké spolupráci s představiteli města, kteří se aktivně podílejí na formulaci zadání a požadavků na podobu celé lokality. 

Vznikne tak koncepčně řešené území s kvalitním veřejným prostorem odpovídajícím současným nárokům na pohyb i pobyt občanů. 

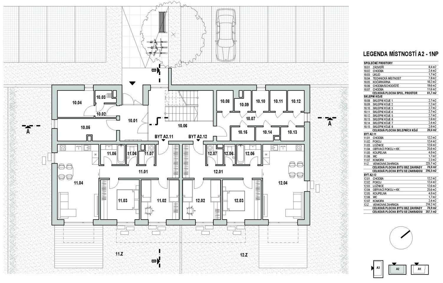
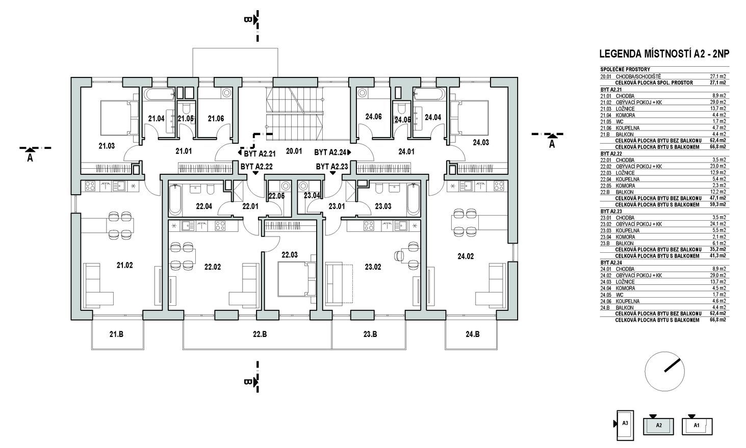
V rámci první etapy výstavby bytových domů jsme navrhli objekty A1, A2 a A3. Celá etapa obsahuje 24 bytových jednotek a 1 jednotku obchodní. V rámci druhé etapy jsou navrženy dva objekty B1 a B2 s celkovou kapacitou 24 bytových jednotek. Kapacity i hmotové řešení vycházejí z regulativů územního plánu a požadavků hlavního architekta města. Objekty se dvěma nadzemními podlažími a třetím ustupujícím chtějí co nejvíce svým měřítkem zapadnout do okolní zástavby převážně rodinných domů.

Velikosti bytů jsou od 1kk až po 4kk. Každý z bytů má k dispozici venkovní prostor, ať už formou předzahrádky, balkonu nebo terasy. U větších bytů, u kterých se předpokládá využití rodinami s dětmi, jsou navrženy předzahrádky. V druhém nadzemním podlaží jsou byty s prostornými balkony. Ve třetím nadzemním podlažím je pak díky uskočení hmoty dostatek prostoru na venkovní terasy.

Technologicky budou domy navrženy tak, aby byly energeticky efektivní a nabízely vysoký standard kvality vnitřního prostředí (tepelná čerpadla jako zdroj, vnější stínění oken proti letnímu přehřívání nebo rekuperace vzduchu).

PM-a © 2023 Všechna práva vyhrazena