zpět

Bytový dům ve Vacově

Studie: 2023
  • bydlení
  • novostavba
  • občanská výstavba

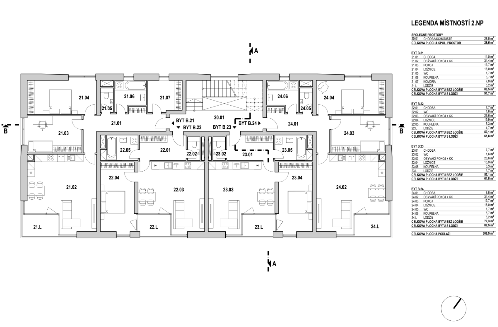
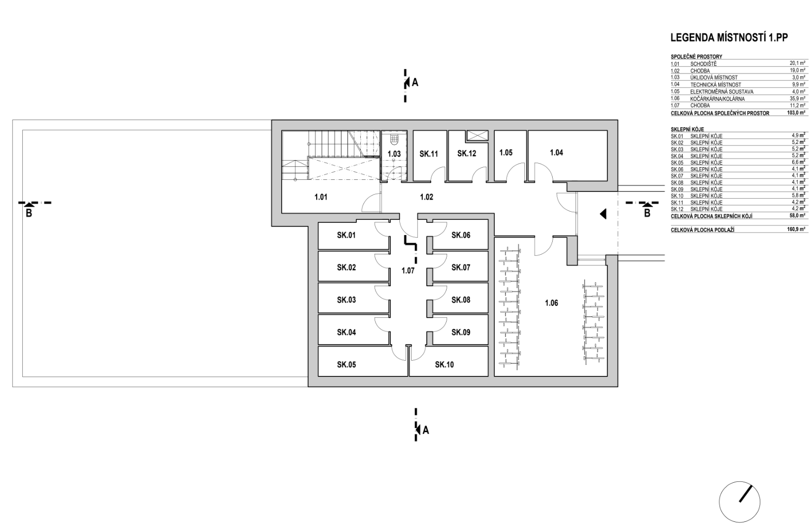
Projekt výstavby nájemných bytů pro obec Vacov na Šumavě. Byty v přízemí mají k dispozici velkorysé předzahrádky, ve vyšších podlažích mají jednotlivé byty navrženy prostorné lodžie. Projekt je součástí větší rozvojové plochy, na které se bude obec dále rozvíjet. Urbanistická studie této plochy projektu bytového domu předcházela.

Velikost bytového domu, jeho umístění a orientace vychází z měřítka okolních staveb a z cíle vytvořit jak kvalitní okolní prostředí, tak i samotný objekt. Půdorys domu má jednoduchý obdélníkový tvar se třemi nadzemními podlažími, jedním podzemním podlažím a sedlovou střechou tradičního sklonu doplněnou o část střechy, která je plochá. Toto řešení je navrhováno s ohledem na okolní zástavbu s cílem tvarově zjemnit a vizuálně zmenšit navrhovaný objekt.

PM-a © 2023 Všechna práva vyhrazena