zpět

Mateřská škola ve Stehelčevsi

studie 2021
  • interiér
  • novostavba
  • občanská výstavba

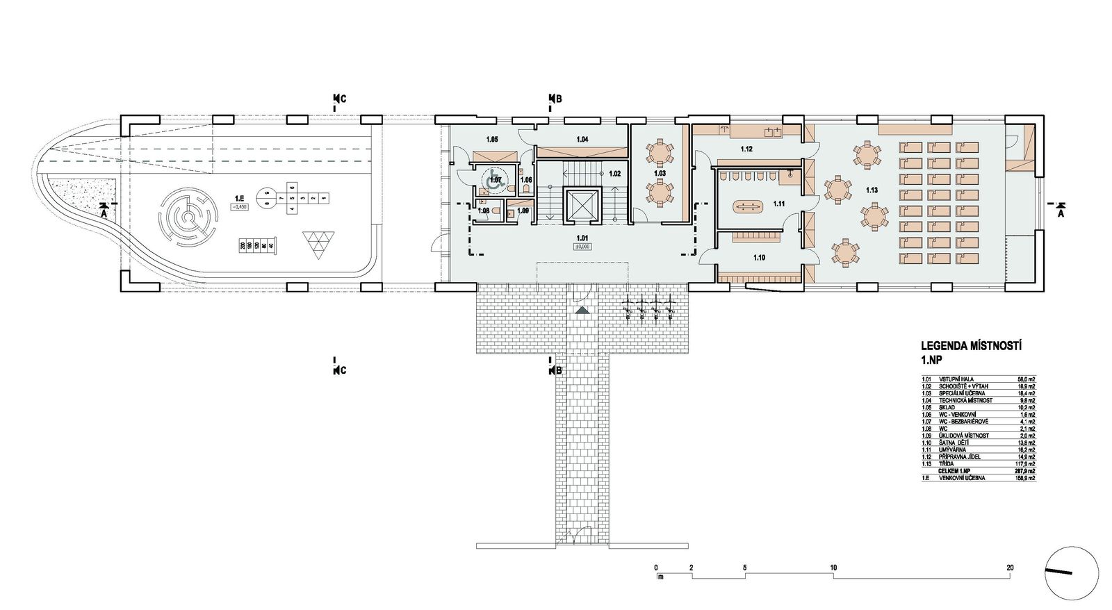
Navrhli jsme novou mateřskou školu pro obec Stehelčeves. Na samotné severní hranici vesnice, v areálu bývalé cihelny, po které do dnešní doby zbyl jen komín. 
 

Nová výstavba pro bydlení přinesla do obce demografický rozvoj, který znamená nárůst počtu dětí. V současnosti mateřská škola sdílí prostory se základní školou v objektu, jehož kapacity jsou již vyčerpány.


Nový objekt školky bude mít tři třídy, zahradu a krytý venkovní prostor pro hraní dětí, kterému tvoří střechu severní křídlo jedné ze tříd.
 

Návrh pracuje s materiálem fasády, jež připomíná historii místa a původní provoz cihelny.  
 

 

Energetické a technologické řešení
 

Objekt je koncipován jako energeticky efektivní až pasivní. Podle toho budou v další fázi projektu navrženy veškeré vnitřní systémy (vytápění, vzduchotechnika, zdravotechnika a elektroinstalace). Na základě zkušeností z posledních realizací v ČR se ukazuje, že je pro bezproblémové fungování provozu novostavby školky třeba chlazení (doc. Matuška; ČVUT UCEEB). Samozřejmostí je zároveň vnější stínění okenních otvorů, aby nedocházelo k přehřívání přímým slunečním zářením.


S ohledem na cílenou podporu z dotačního titulu SFŽP lze předpokládat, že měrná potřeba tepla na vytápění objektu se bude pohybovat kolem úrovně pasivního standardu, tj.: 

20 kWh/m2.a (měrná potřeba tepla na vytápění pro pasivní domy) x 862,1m2 (HPP) = 17,2 MWh/a.


V rámci koncepčního energetického návrhu bylo jako zdroj tepla a chladu vybráno tepelné čerpadlo země-voda, které je z hlediska provozních nákladů nejefektivnější a zároveň je vhodné také pro chlazení. Vytápění by pak bylo nízkoteplotní pomocí podhledového systému nebo podlahy.


Chlazení - z důvodu rychlosti proudění vzduchu, která je hlídána hygienickými předpisy není doporučeno chlazení splitovými jednotkami. Pro projekt je uvažováno se stropním chlazením pomocí podhledů nebo chladicích trámů. Obě technologie zároveň umí vytápět, takže se nabízí chlazení i vytápění integrovat do jednoho systému.

PM-a © 2023 Všechna práva vyhrazena