zpět

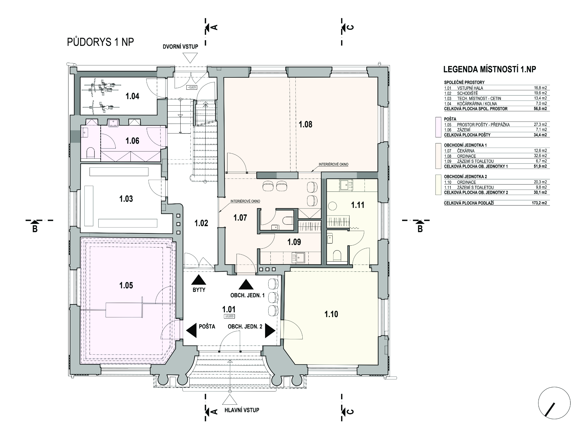
Pošta Vacov

  • bydlení
  • občanská výstavba
  • rekonstrukce

Původní stavba pošty ve Vacově je z roku 1931. Chtěli jsme zachovat v co největší míře původní historické vyznění fasády a interiéru, ale zároveň její využitelnost přizpůsobit dnešní době. Ve vstupním podlaží se nachází prostory pošty a pronajímatelných jednotek pro služby občanům Vacova. Ve vyšších podlažích pak byty.
 
Materiálově bude objekt řešen jednoduše a čistě - v kombinaci s bílou omítkou, šedou střechou, šedými a dřevěnými okny s původním kamenným soklem a schodištěm. Střecha je polovalbová, se stávajícím středovým vikýřem na uliční fasádě, který navazuje na vstupní portál. Pro nové byty v podkroví jsme doplnili na dvorní fasádě asymetrické vikýře jako novou architektonickou vrstvu doplňující původní vzhled.
 

PM-a © 2023 Všechna práva vyhrazena