zpět

Revitalizace náměstí a multifunkční objekt ve Vacově

Projekt 2016 (2. místo ve vyzvané soutěži)
  • novostavba
  • občanská výstavba
  • ostatní
  • rekonstrukce

URBANISMUS
Vacovské náměstí je přirozenou křižovatkou komunikací, vedoucí přes obec. Nejvýznamnější jsou dvě hlavní komunikační osy, na které studie reaguje. Hlavní východo-západní osa představuje silnici spojující směr od Strakonic na východě k Vimperku, Zadovu a Javorníku na západě.
Severo-jižní osa, kterou návrh akcentuje, není v současném stavu zřetelná a je stávající urbanistickou kompozicí potlačena kamennou stěnou a objekty určenými k demolici. Tato osa tvoří velmi důležité propojení mezi historickou částí Vacova, které dominuje kostel a rozvojově novější částí Vlkonice, která zaznamenala největší vývoj v druhé polovině dvacátého století a bydlí zde také velké množství obyvatel.
Nejproblematičtějším z hlediska tváře náměstí je objekt samoobsluhy (COOP) v jihozápadní části, který absolutně nerespektuje měřítko ani kontext okolní zástavby.
Jižní hranici náměstí dnes lemuje kamenná stěna, která tvoří bariéru mezi dotčenou plochou studie a hlavním prostorem náměstí. Z důvodu propojení obou ploch je navrženo zbourání větší části kamenné stěny tak, aby vzniklo široké schodiště a byla uvedena v život výše zmíněná přirozená severojižní komunikační osa z Vlkonic do centra obce.

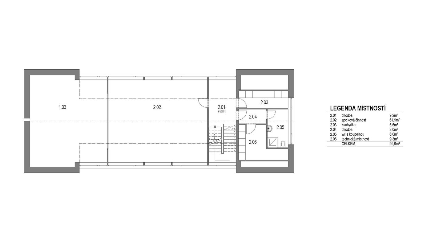
MULTIFUNKČNÍ OBJEKT
Koncept multifunkčního objektu spočívá v jeho zakomponování do navrhovaného parku tak, aby byl jeho přirozenou součástí a zároveň měřítkově zapadal do urbanistické struktury.

PARKOVÉ ÚPRAVY
Návrh studie počítá s vytvořením parku v dotčené ploše, jehož páteří bude pěší komunikace spojující Vlkonice s centrem obce. Morfologie terénu vytváří přirozený vrchlík, který návrh respektuje a pracuje s ním. Osa pěší komunikace je přímá, ale výškově bude přirozeně zvlněná. V rámci prostoru je navržen rastr velkých listnatých stromů, který plní funkci přirozeného stínění pro pobytové části parku a zároveň se uplatňuje jako jednotící prvek celého prostoru.
Ve východní části parku jsou navrženy lavičky, dětské hřiště a malý kruhový amfiteátr sestávající z několika schodů tvořících hlediště. Tento prostor pro volnočasové aktivity by měly využívat především místní děti.

PM-a © 2023 Všechna práva vyhrazena