zpět

Rodinný dům Poděbrady

Studie: 2025
  • bydlení
  • rekonstrukce
  • rodinný dům

Rekonstrukce dvojdomu v Poděbradech propojuje tradiční archetyp s moderním přístupem. Objekt bude opatřen novou fasádou i střechou s novými střešními okny a vikýřem. Materiálově je objekt řešen s ohledem na hmotovou kompozici – stejná světlá omítka s jemnou strukturou, doplněná o kanelury se světle zelenými rámy oken. Materiál se opakuje také na fasádě hlavního objemu rodinného domu.

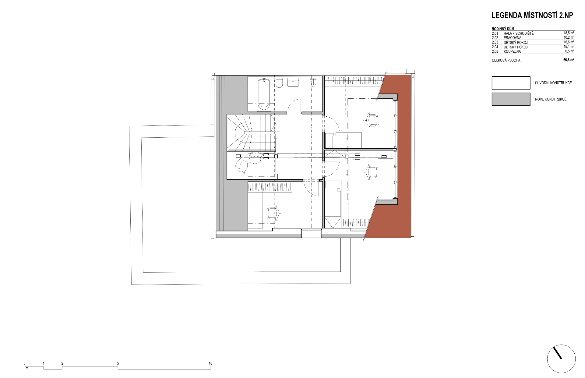
Hmota nové přístavby navazuje na objem stávající části a plynule s ní splývá. Jihozápadní fasáda je nově členěna vnějšími otvory. Z pohledu ulice dům respektuje původní měřítko a charakter zástavby, zatímco směrem do dvora se otevírá do vzdušného obytného prostoru.

V návrhu je nové propojení 1. a 2. NP prostřednictvím nového schodiště. V 1. nadzemním podlaží se nachází hlavní obytný prostor – obývací pokoj s kuchyní, předsíň, hala, ložnice, pracovna, technické zázemí a koupelna.
Druhé nadzemní podlaží tvoří intimní klidová zóna se dvěma dětskými pokoji, pracovnou a koupelnou.
V zahradě je umístěna pobytová terasa, zastřešené posezení s krbem. Je zde pracováno zejména s povrchy z lomené bílé omítky a dřevěnými trámy zastřešení střechy. Vše je doplněno zelení.
 
 

PM-a © 2023 Všechna práva vyhrazena