zpět

Dům Na Hvížďalce

2020
  • bydlení
  • interiér
  • novostavba
  • rodinný dům

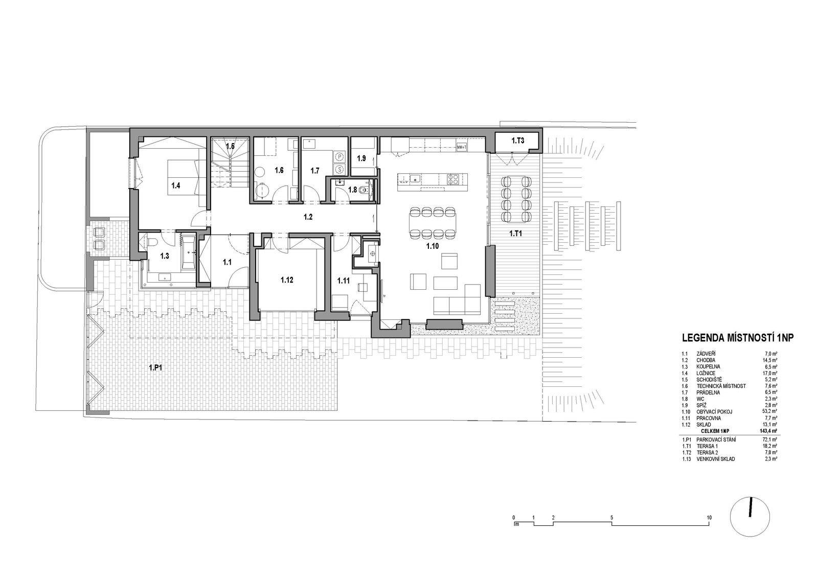
Na parcele s původním 100 let starým polorozpadlým domem jsme měli za úkol navrhnout nový dům pro rodinu se čtyřmi dětmi. Dům s poměrně rozsáhlým programem, který odpovídá požadavkům na současné bydlení, poskytuje každému členovi domácnosti vlastní prostor a využívá silných stránek pozemku - zahradu nebo výhledy na východní stranu.

V domě je využito moderních technologií na regulaci energetických toků a vnitřního komfortu. O vnitřní tepelnou stabilitu se starají aktivované železobetonové stropy, které díky prediktivnímu řízení dopředu reagují na předpovídané změny počasí. Společně s využitím venkovního stínění žaluziemi a centrální vzduchotechnické jednotky tak dům zůstává v zimě komfortně teplý a v létě se nepřehřívá.

Foto: Filip Šlapal

PM-a © 2023 Všechna práva vyhrazena