zpět

Rezidence Gregorius

2018
  • bydlení
  • interiér
  • rekonstrukce

Projekt: 2016, Realizace: 2017-18

Spolupráce s architektem Petrem Drexlerem

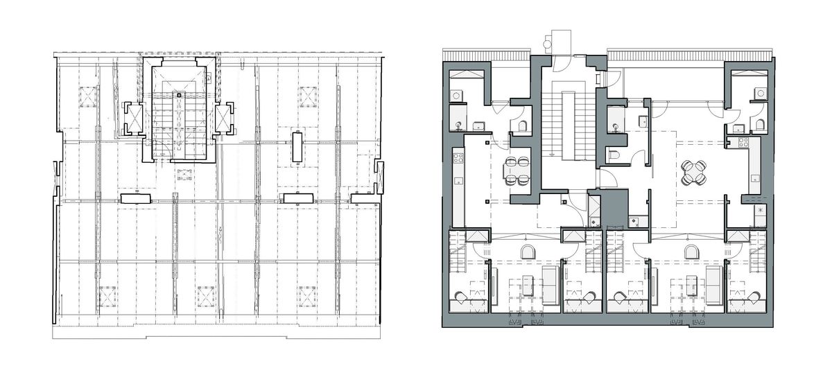
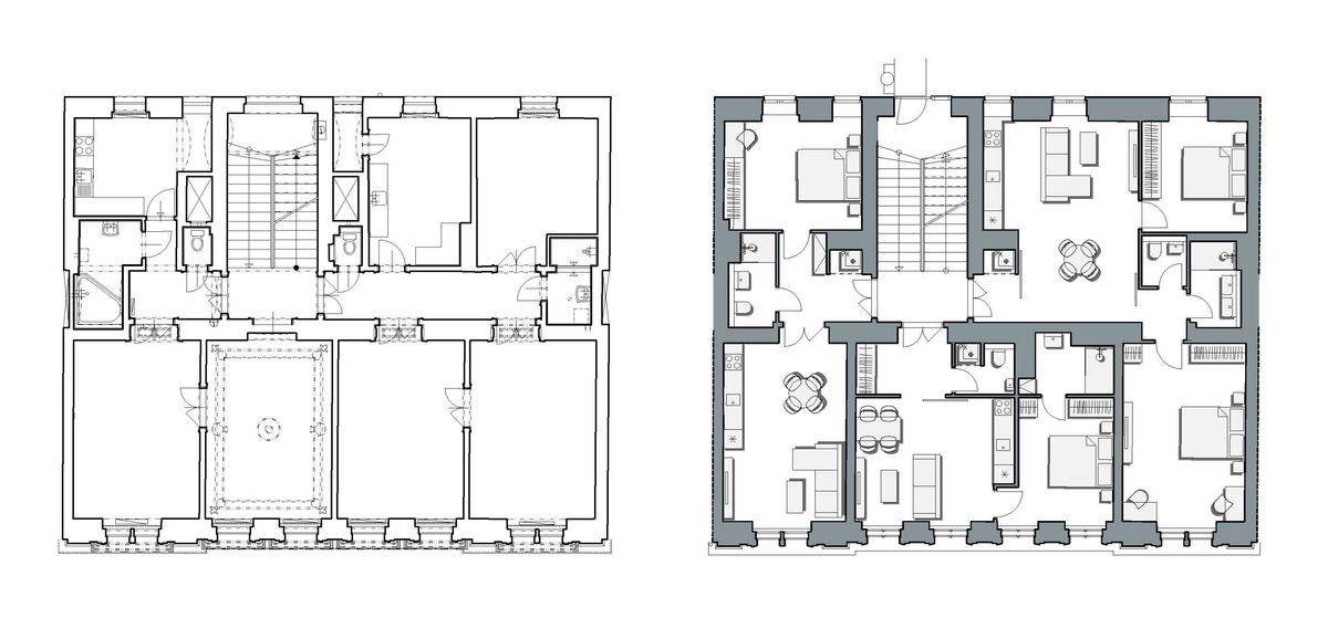
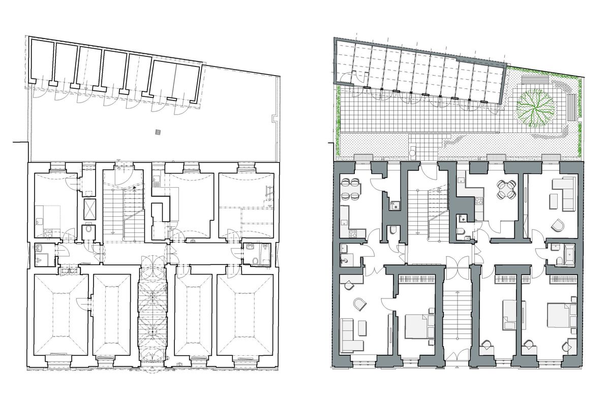
Rekonstrukce neorenesančního domu na Žižkově. Byla provedena komplexní rekonstrukce společných prostor včetně nové půdní vestavby, úpravy vnitrobloku a realizace nového výtahu.

- Autoři: architekt Petr Drexler ve spolupráci s PM architekti s.r.o.
- Zahradní úpravy: Ing. arch. Vendula Markevičová

Foto: PM-a, Jan Slavík

PM-a © 2023 Všechna práva vyhrazena