zpět

Rodinný dům ve Vacově

2017
  • bydlení
  • interiér
  • novostavba
  • rodinný dům

Projekt: 2014, realizace 2015-16

Hlavní motivací klientů, proč odejít z bytu a postavit si rodinný dům, byla touha žít v zahradě v kontaktu s přírodou a okolní krajinou.

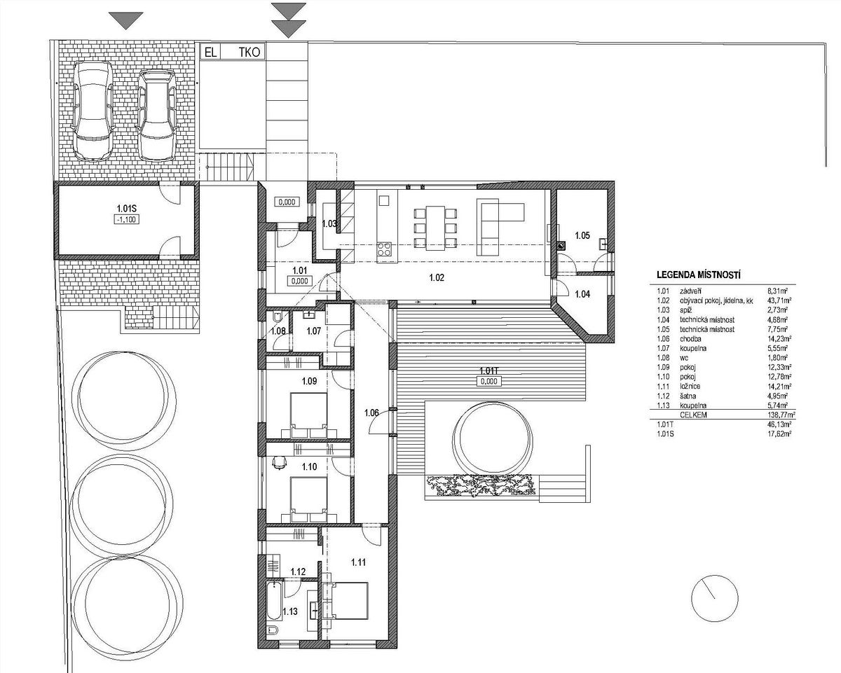
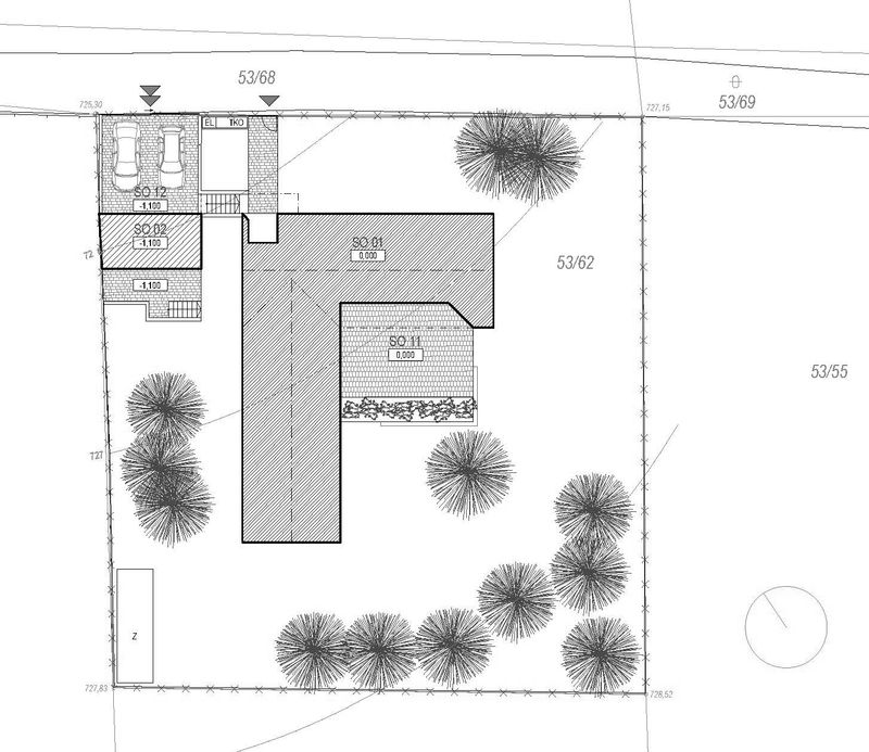
Z této prvotní ideje vychází návrh, ve kterém se nejdůležitějším prvkem stává pobytová terasa, která je ze dvou stran chráněna rodinným domem. Je tak vytvořen intimní venkovní prostor.

Hlavní obytná místnost je orientována na terasu, na severní stranu je doplněn panoramatickým oknem poskytujícím výhled do údolí. Pracovna, pokoj pro dospívající dceru a ložnice jsou orientovány mimo atrium, na západní a jižní stranu. Jde o zachování soukromí jednotlivých členů rodiny a jejich přání, aby nebyli probouzeni brzkým východním sluncem.

Díky rychlosti výstavby byla zvolena technologie dřevostavby s difuzně otevřenou skladbou stěny.

- Zahrada: Ing. arch. Vendula Markevičová

foto: Jakub Šebek

PM-a © 2023 Všechna práva vyhrazena